产品中心

联系方式

地 址:北京市大兴区榆垡镇南十路9号三层3151室

咨询热线:13146836777  

Q  Q:2821767196

邮 箱:[email protected]

网 址:

布料机

您的当前位置: 首 页 >> 产品中心 >> 陈腐垃圾处理设备

布料机

  • 所属分类:陈腐垃圾处理设备

  • 点击次数:
  • 发布日期:2021/05/07
  • 在线询价
详细介绍

设备功能:

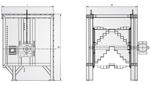
布料机是与鳞板式上料输送机配合使用的一种限料设备。其主要作用就是调节垃圾的上料量,为整条处理线的正常运行提供前期保障,此设备采用变频调速电动机,具有均匀调速、稳定上料的特点。
01.jpg
                             布料机CAD图 

设备外形尺寸表:
设备外形尺寸表

相关标签:垃圾处理厂家,布料机

上一篇:打包机
下一篇:滚筒筛

最近浏览:

在线客服
分享 一键分享
欢迎给我们留言
请在此输入留言内容,我们会尽快与您联系。
姓名
联系人
电话
座机/手机号码
邮箱
邮箱
地址
地址

京公网安备 11011502004214号