产品中心

联系方式

地 址:北京市大兴区榆垡镇南十路9号三层3151室

咨询热线:13146836777  

Q  Q:2821767196

邮 箱:[email protected]

网 址:

圆盘筛

您的当前位置: 首 页 >> 产品中心 >> 陈腐垃圾处理设备

圆盘筛

  • 所属分类:陈腐垃圾处理设备

  • 点击次数:
  • 发布日期:2017/08/15
  • 在线询价
详细介绍

设备功能: 

圆盘筛是一种专用筛分处理设备。该设备具有筛分效率高、运行平稳的特点,适合没有大的缠绕物的物料筛分。例如:建筑垃圾、工业垃圾、玻璃、沙土、灰渣、纸和纸板等筛分。本设备具有处理速度快、连续工作能力强、筛分精确、质量可靠、维护简便等优点。但此设备容易被缠绕,因此不适合用于生活垃圾的初级筛分,一般用于破碎后物料的筛分处理。


设备结构特点:

圆盘齿形为六边形。根据物料的不同选用不同大小的齿形,通过齿形之间的间隙不同来达到筛分不同粒径的目的。圆盘筛的各传动轴之间采用链传动。筛分面采用水平和倾斜均可.其中倾斜状态可以通过调整倾斜角的大小来达到,从而满足不同物料和不同粒径的筛分。

.该设备可以采用固定式也可以采用移动式。


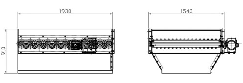
圆盘筛CAD图:

圆盘筛

圆盘筛技术规格表:

设备名称

型号

驱动功率(KW)

处理量(吨/时)

圆盘筛

BFZ-YPS120

11

20

相关标签:垃圾处理设备厂家,圆盘筛

上一篇:陈腐垃圾处理设备
下一篇:振动筛

最近浏览:

在线客服
分享 一键分享
欢迎给我们留言
请在此输入留言内容,我们会尽快与您联系。
姓名
联系人
电话
座机/手机号码
邮箱
邮箱
地址
地址

京公网安备 11011502004214号