产品中心

联系方式

地 址:北京市大兴区榆垡镇南十路9号三层3151室

咨询热线:13146836777  

Q  Q:2821767196

邮 箱:[email protected]

网 址:

综合风选系统

您的当前位置: 首 页 >> 产品中心 >> 生活垃圾处理设备

综合风选系统

  • 所属分类:生活垃圾处理设备

  • 点击次数:
  • 发布日期:2021/05/07
  • 在线询价
详细介绍

综合风选系统

设备功能:综合风选机是我公司在多年的实践中为了提高垃圾风选的效率,专门研发的正负压相结合的风选设备。主要用于城市生活垃圾处理系统中,是垃圾处理线的专用设备。对筛分处理筛上物中的塑料及纸张等轻物进行最大化的分选。集正压风选负压风选和除尘功能为一体的综合性设备。通过调整送风角度、布料器位置、挡帘位置、物料在最佳的流速和流量下有效分离使该分选系统达到最佳的处理效果,分选出的轻物料进入物料分离器,废气和轻物料得到分离,废气粉尘进入除尘系统处理后排出,另一部分再与新鲜空气混合后重新进入鼓风系统。分选效果好、分选效率可达95%以上。在设备安装现场,针对生活垃圾的不同情况,不定期调节管道阀门,调节风量风压,使生活垃圾中轻物料垃圾的分选达到最佳的处理效果。 能够最大限度地实现轻物料垃圾的分选,且无灰尘产生,避免二次污染。

综合风选设备特点:
综合风选系统

通过鼓风系统、除尘系统,能够实现轻物料垃圾的分选,且无灰尘产生,具有控制精度高,性能稳定的特点。独特和优化的设计使其满足在恶劣的工况下使用,解决了生活垃圾中塑料、薄膜、纸等大量轻物料进行机械分选的难题。这套综合分选设备具有功率低、噪音小、处理量大、效率高、分选效果好等优点,可广泛应用于各种大、中、小型垃圾厂的规模化处理。

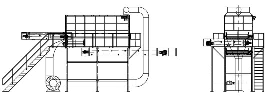
综合风选CAD图:
综合风选CAD图
综合风选设备外形尺寸及技术规格表:
综合风选设备外形尺寸及技术规格表

相关标签:垃圾处理厂家,综合风选系统

上一篇:垃圾压缩设备
下一篇:滚筒筛

最近浏览:

在线客服
分享 一键分享
欢迎给我们留言
请在此输入留言内容,我们会尽快与您联系。
姓名
联系人
电话
座机/手机号码
邮箱
邮箱
地址
地址

京公网安备 11011502004214号